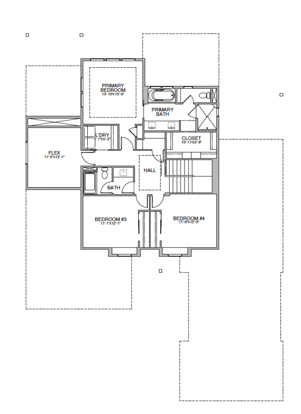
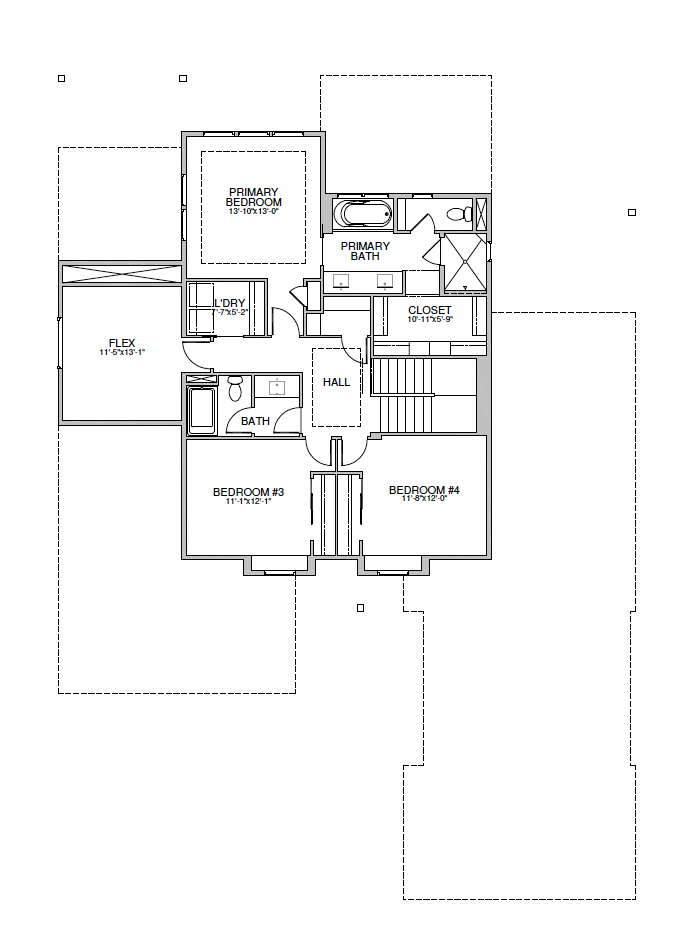
Belfair Multi Gen™

4 Beds
3.5 Baths
4 Car Garage
3,140 SqFt

Extra Rooms: Flex Room

Cheryl Jensen
Equity Northwest Real Estate

208-576-0026

Book a Call
McKenna Fusselman
Equity Northwest Real Estate

208-203-9424

Book a Call

new homes in Meridian ID at Pinnacle

The Belfair floor plan is designed with flexibility and connection in mind, offering a thoughtfully integrated Multi Gen™ suite on the main level. Complete with its own private garage and separate entry, this suite creates the perfect balance of independence and proximity. Whether it’s extended family, long-term guests, or a private home office setup, the space allows for comfortable, self-contained living while still maintaining an optional interior connection to the main home for shared moments.

Beyond the suite, the main living area opens up into a bright, airy layout that feels both spacious and welcoming. Large windows and an expansive patio create a seamless indoor-outdoor flow, ideal for entertaining or simply enjoying a quiet evening outside. Upstairs, additional bedrooms provide privacy and room to grow, making the Belfair a home that adapts beautifully to a variety of lifestyles.

Schedule a Phone Meeting    Request More Info

Community Features

  • Large Gathering Park
  • Micro Parks with Playgrounds
  • Two Swimming Pools
  • Interconnected Walking Paths
  • Charter School
  • Amphitheater
  • Lifestyle Director
  • Next to Discovery Park

Brighton Standard Features

Greyloch Custom Cabinetry
Fully Landscaped Front & Back Yards w/ Sprinklers and Drip Systems
Premium Fencing
Bosch Appliances
Energy Efficient Homes
Pinnacle by Brighton in Meridian Idaho

Pinnacle

6040 S Apex Ave, Meridian, ID 83642

Homes starting at $500,000!

Cheryl Jensen
Equity Northwest Real Estate

208-576-0026

Book a Call
McKenna Fusselman
Equity Northwest Real Estate

208-203-9424

Book a Call

available homes at Pinnacle

998 E Escalation St
Move In Ready
Pine Valley
$605,340
3 Beds
2 Baths
2 Car Garage
1,840 SqFt

998 E Escalation St, Meridian, ID 83642

Estimated Closing Date: MOVE IN READY
Job Number: 08007030
1026 E Crescendo St
Move In Ready
Palmetto Multi Gen™
$824,900
4 Beds
3.5 Baths
3 Car Garage
3,020 SqFt

1026 E Crescendo St, Meridian, ID 83642

Estimated Closing Date: MOVE IN READY
Job Number: 08010004
6080 S Apex Ave
Move In Ready
Leatherman
$524,900
3 Beds
2.5 Baths
3 Car Garage
1,840 SqFt

6080 S Apex Ave, Meridian, ID 83642

Estimated Closing Date: MOVE IN READY
Job Number: 05006006

new homes in Meridian ID, Boise ID, Eagle ID, Nampa ID

We’re happy to talk to you about available homes, home designs, or your general interest in this community!

stay in the know

From home design tips to new industry standards, we’ve got you covered.